Tính năng Bồn Cầu 2 Khối TOTO CS326DE4 Nắp Rửa Cơ TCW1211A
-
Thiết kế 2 khối gọn gàng, dễ dàng lắp đặt và vệ sinh.
-
Ứng dụng công nghệ xả xoáy Tornado, cuốn trôi hiệu quả mọi vết bẩn chỉ trong một lần xả.
-
Trang bị 2 chế độ xả gạt (4.5/3L) giúp tiết kiệm nước tối ưu.
-
Bề mặt men sứ ứng dụng công nghệ CeFiONtect siêu nhẵn, hạn chế bám bẩn và vi khuẩn.
-
Nắp rửa cơ TCW1211A tích hợp 2 chế độ rửa sau và rửa trước dành cho phụ nữ giúp tiện lợi cho nhu cầu sử dụng hàng ngày.
-
Cần gạt cơ học dễ thao tác, không cần điện, an toàn và tiết kiệm điện và dễ dàng sử dụng đối với trẻ nhỏ và người lớn
-
Nắp đóng êm giúp hạn chế tiếng ồn và tăng độ bền cho sản phẩm.
Ưu điểm bồn cầu đặt sàn TOTO CS326DE4 Nắp Rửa Cơ TCW1211A
-
Tiết kiệm chi phí: nhờ khả năng tiết kiệm nước và không dùng điện cho nắp rửa cơ.
-
An toàn, thân thiện: phù hợp với gia đình có trẻ nhỏ, người lớn tuổi vì thao tác đơn giản, nhẹ nhàng.
-
Độ bền vượt trội: men sứ cao cấp chống bám bẩn, hạn chế ố vàng, giữ bồn cầu luôn sáng bóng như mới.
-
Thiết kế sang trọng: mang lại vẻ hiện đại, thanh lịch, nâng tầm không gian phòng tắm.
-
Bảo vệ sức khỏe: công nghệ CeFiONtect và nắp rửa cơ hỗ trợ vệ sinh cá nhân tối ưu, ngăn ngừa vi khuẩn gây hại.
-
Dễ bảo dưỡng: cấu tạo 2 khối giúp việc thay thế, vệ sinh nhanh chóng, thuận tiện.
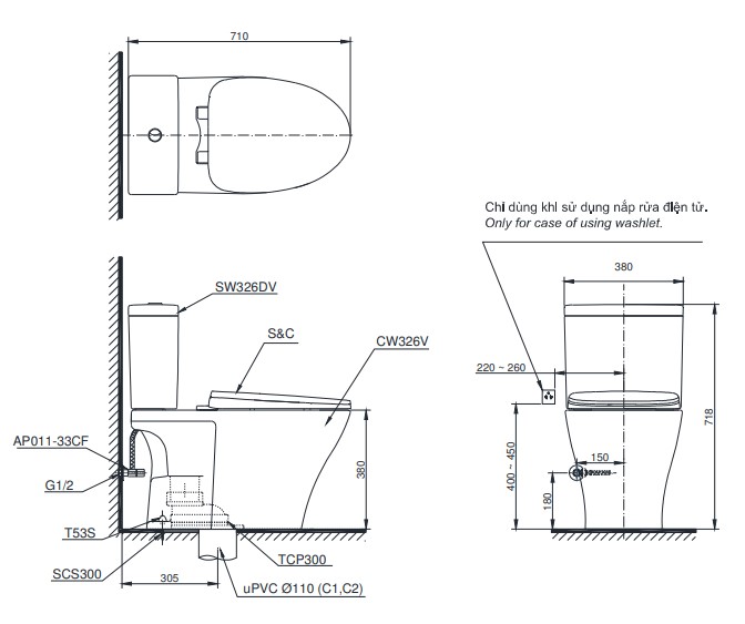
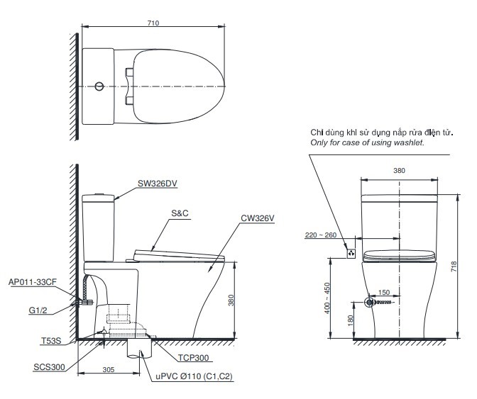
Bản vẽ kích thước bồn cầu thông minh TOTO CS326DE4 Nắp Rửa Cơ TCW1211A
Dưới đây là bản vẽ kỹ thuật của bệt 326 giúp bạn hình dung rõ hơn về kích thước và thông số lắp đặt:

Bản vẽ kích thước bồn cầu hai khối TOTO CS326DE4 Nắp rửa cơ TCW1211A
Video review bàn cầu 2 khối TOTO CS326DE4 Nắp Rửa Cơ TCW1211A
Để giúp bạn có cái nhìn chân thực nhất về bàn cầu, dưới đây là video review chi tiết sản phẩm:
Hãy liên hệ ngay với Showroom Tâm Anh để được tư vấn những mẫu bồn cầu TOTO ưng ý, chất lượng và giá tốt nhất thị trường bạn nhé.
Liên hệ ngay để được hỗ trợ và tư vấn: 0967.136.177 - 0987.315.238