Tính năng Bồn Cầu 2 khối TOTO CS302DE2 Hai Khối Nắp Rửa Cơ TCW07S
-
Thiết kế 2 khối hiện đại: Thân bồn và két nước tách rời, dễ dàng lắp đặt và thay thế khi cần.
-
Công nghệ xả xoáy Siphon: Dòng nước mạnh mẽ, cuốn trôi hiệu quả chất bẩn chỉ trong một lần xả.
-
Nắp rửa cơ TCW07S: Trang bị tính năng rửa sau tiện lợi, không cần điện, phù hợp với nhiều đối tượng sử dụng.
-
Tiết kiệm nước tối ưu: Hệ thống xả 2 nút nhấn (3L/4.8L) giúp người dùng tiết kiệm chi phí nước hàng tháng.
-
Thiết kế thân dài gọn gàng: Phù hợp nhiều không gian nhà vệ sinh từ nhỏ đến lớn.
-
Nắp đóng êm: Giúp hạn chế tiếng ồn, tạo cảm giác thoải mái và bền hơn cho phụ kiện.
Ưu điểm bồn cầu đặt sàn TOTO CS302DE2 Hai Khối Nắp Rửa Cơ TCW07S
-
Thương hiệu uy tín: TOTO là tập đoàn thiết bị vệ sinh hàng đầu Nhật Bản, bảo chứng cho chất lượng và độ bền.
-
An toàn & thân thiện với môi trường: Nắp rửa cơ không dùng điện, vừa tiết kiệm năng lượng vừa hạn chế rủi ro khi sử dụng.
-
Giá thành hợp lý: So với các dòng nắp rửa điện tử, sản phẩm mang lại trải nghiệm thoải mái mà vẫn tiết kiệm chi phí đầu tư.
-
Phù hợp nhiều đối tượng: Người lớn tuổi, trẻ em, phụ nữ mang thai đều dễ dàng sử dụng mà không cần thao tác phức tạp.
-
Tiết kiệm chi phí lâu dài: Nhờ men chống bám bẩn, hệ thống xả tiết kiệm nước, sản phẩm giúp giảm đáng kể chi phí bảo dưỡng và hóa đơn nước hàng tháng.
-
Nâng cao trải nghiệm sống: Kết hợp giữa thiết kế tinh tế và tính năng vệ sinh hiện đại, sản phẩm mang lại sự tiện nghi và nâng tầm không gian phòng tắm.
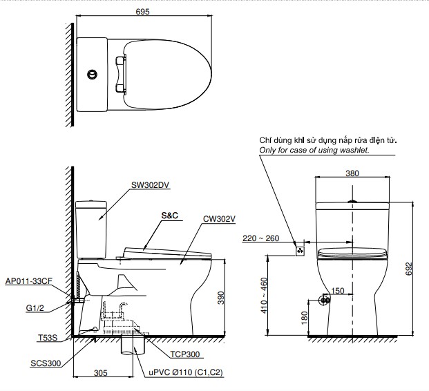
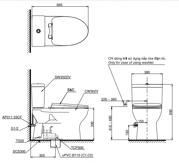
Bản vẽ kích thước bồn cầu thông minh TOTO CS302DE2 Nắp Rửa Cơ TCW07S
Dưới đây là bản vẽ kỹ thuật của bệt 302 giúp bạn hình dung rõ hơn về kích thước và thông số lắp đặt:

Bản vẽ kích thước bồn cầu hai khối TOTO CS302DE2 Nắp rửa cơ TCW07S
Video review bàn cầu 2 khối TOTO CS302DE2 Nắp Rửa Cơ TCW07S
Để giúp bạn có cái nhìn chân thực nhất về bàn cầu, dưới đây là video review chi tiết sản phẩm:
Hãy liên hệ ngay với Showroom Tâm Anh để được tư vấn những mẫu bồn cầu TOTO ưng ý, chất lượng và giá tốt nhất thị trường bạn nhé.
Liên hệ ngay để được hỗ trợ và tư vấn: 0967.136.177 - 0987.315.238