Tính năng bồn cầu một khối TOTO MS188 VKT2/T53P100VR Nắp TC393VS
- Thiết kế liền khối sang trọng: Sản phẩm có form dáng tối giản, trắng trang nhã, thân dài thân kín, dễ dàng hòa hợp với mọi phong cách nội thất phòng tắm.
- Công nghệ men CEFIONTECT: Giúp bề mặt sứ siêu nhẵn, chống bám bẩn và ố vàng, đồng thời lớp men ưa nước làm chất thải trượt nhanh, giữ bồn cầu luôn sáng bóng
- Hệ thống xả Tornado siêu hiệu quả: Luồng nước xoáy 360° mạnh mẽ, nhưng vẫn vận hành êm ái, chỉ cần 4.8 lít nước mỗi lần xả, tiết kiệm và sạch sâu
- Thiết kế RIMLESS – vành kín: Loại bỏ những khe hở trong vành, ngăn ngừa vi khuẩn tích tụ và dễ vệ sinh hơn nhiều
- Nắp đóng êm TC393VS: Hoạt động nhẹ nhàng, không gây tiếng ồn khó chịu, chất liệu nhựa cao cấp, bền bỉ, chống ố vàng hiệu quả
Ưu điểm bồn cầu liền khối TOTO MS188VKT2/T53P100VR Nắp TC393VS
-
Xả sạch trong 1 lần xả, vẫn êm tai: Tornado tạo dòng xoáy 360° quét đều lòng cầu, cuốn trôi nhanh mà không ồn, rất hợp không gian kín.
-
Giữ trắng lâu, ít cọ rửa: bề mặt CEFIONTECT siêu mịn, chất bẩn khó bám giúp giảm tần suất vệ sinh, tiết kiệm thời gian và trắng bóng.
-
Thiết kế vành kín Rimless: không còn viền hộp khó chà, hạn chế mùi & vi khuẩn tích tụ, lau một đường là sạch.
-
Tiết kiệm nước chuẩn 4.8L: tay gạt cơ bền bỉ, lưu lượng mỗi xả thấp nhưng lực xả vẫn mạnh.
-
Nắp TC393VS: nắp đóng êm, bảo vệ sứ và êm ái khi dùng hằng ngày.
-
Dễ lắp đặt: tâm xả 305 mm, có T53P100VR đúng chuẩn hệ thoát sàn thông dụng.
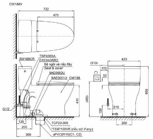
Bản vẽ kích thước bồn cầu 1 khối TOTO MS188VKT2 Nắp Êm TC393VS
Dưới đây là bản vẽ kỹ thuật của bồn cầu giúp bạn hình dung rõ hơn về kích thước và thông số lắp đặt:
.jpg)
Bản vẽ kích thước bồn cầu một khối TOTO MS188VKT2 Nắp Êm TC393VS
Video review bàn cầu 1 khối TOTO MS188VKT2/T53P100VR Nắp Êm TC393VS
Để giúp bạn có cái nhìn chân thực nhất về bàn cầu, dưới đây là video review chi tiết sản phẩm:
Hãy liên hệ ngay với Showroom Tâm Anh để được tư vấn những mẫu bồn cầu TOTO ưng ý, chất lượng và giá tốt nhất thị trường bạn nhé.
Liên hệ ngay để được hỗ trợ và tư vấn: 0967.136.177 - 0987.315.238