Thân sen cây tắm đứng TOTO TBW07006A bát tròn 220mm là một trong những thiết bị vệ sinh cao cấp của thương hiệu TOTO Nhật Bản. Sản phẩm nổi bật với thiết kế hiện đại, bát sen vuông bản rộng và đặc biệt được trang bị công nghệ Comfort Wave – mang lại trải nghiệm tắm thư giãn, sảng khoái như tại spa.
Đặc điểm nổi bật của thân sen massage TOTO TBW07006A
- Bát sen tròn kích thước 220mm: Dòng nước bao phủ toàn thân, tạo cảm giác thư giãn tối đa.
- Thiết kế sang trọng, tinh tế: Đường nét vuông vức, hiện đại, phù hợp với nhiều phong cách phòng tắm.
- Chất liệu cao cấp: Thân sen chế tác từ đồng thau bền chắc, bề mặt mạ Crom – Niken sáng bóng, chống gỉ sét và ăn mòn.
- Dễ dàng kết hợp: Có thể lắp đặt linh hoạt với nhiều bộ trộn và bát sen cầm tay khác của TOTO.
Tính năng nổi bật của thân sen cây TOTO TBW07006A
- Công nghệ Comfort Wave: Dòng nước mát-xa mạnh mẽ, mang lại cảm giác thư giãn và dễ chịu như spa tại nhà.
- Dòng nước massage mạnh mẽ: Sự kết hợp giữa tia nước mạnh và tia nước mềm giúp massage nhẹ nhàng, giảm căng thẳng, mệt mỏi.
- Trải nghiệm spa tại nhà: Comfort Wave mô phỏng cảm giác tắm mưa tự nhiên, mang lại sự thư giãn tuyệt đối.
- Tiết kiệm nước: Công nghệ đặc biệt này không chỉ nâng cao trải nghiệm mà còn giảm lượng nước tiêu thụ so với sen tắm truyền thống.
Lợi ích khi sử dụng sen cây TOTO TBW07006A
- An toàn & bền bỉ: Chất liệu cao cấp, lớp mạ chống oxy hóa, giữ độ sáng bóng lâu dài.
- Nâng tầm thẩm mỹ phòng tắm: Thiết kế hiện đại, sang trọng, phù hợp nhiều không gian.
- Tiện lợi & linh hoạt: Dễ lắp đặt, dễ vệ sinh và kết hợp cùng nhiều phụ kiện khác của TOTO.
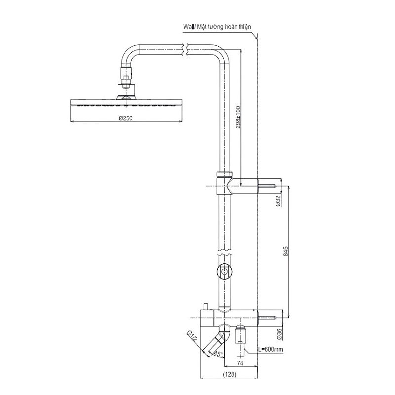
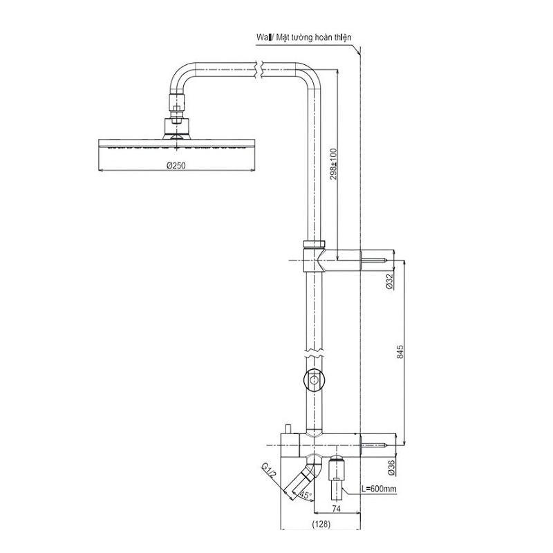
Bản vẽ kích thước sen tắm cây Toto TBW07006A
.jpg)
Bản vẽ thân sen cây TBW07006A
Thân sen cây tắm đứng TOTO TBW07006A bát tròn 220mm không chỉ mang đến sự bền bỉ, sang trọng mà còn tạo ra trải nghiệm tắm hoàn toàn khác biệt nhờ công nghệ Comfort Wave. Đây chính là lựa chọn lý tưởng cho những ai muốn nâng cấp phòng tắm thành không gian thư giãn cao cấp ngay tại nhà.
Nếu bạn đang tìm một mẫu sen tắm TOTO bền đẹp, chính hãng và dễ dàng kết hợp với nhiều phụ kiện, TBW07006A chính là lựa chọn lý tưởng.
Đừng ngần ngại liên hệ ngay với showroom Tâm Anh để được tư vấn chi tiết và chọn lựa sản phẩm phù hợp nhất.
Hotline hỗ trợ: 0987.315.238 – 0967.136.177 – 0981.711.166
Ngoài ra, Tâm Anh còn phân phối đa dạng các dòng thiết bị vệ sinh TOTO cao cấp khác, mời bạn tham khảo thêm!