Tính năng Bồn Cầu TOTO MS857DE4 Nắp Rửa Cơ TCW1211A
-
Thiết kế một khối hiện đại: Kiểu dáng liền khối sang trọng, dễ vệ sinh, tạo sự gọn gàng và thẩm mỹ cho phòng tắm.
-
Hệ thống xả xoáy Tornado: Xả cực mạnh, cuốn trôi mọi vết bẩn nhưng vẫn tiết kiệm nước tối ưu.
-
Nắp rửa cơ TCW1211A thông minh: Trang bị 2 chế độ rửa trước và rửa sau, điều chỉnh lực nước dễ dàng, không cần dùng điện.
-
Công nghệ men sứ CEFIONTECT: Lớp men sứ tráng bóng, ứng dụng công nghệ CeFiONtect chống bám bẩn, ngăn vi khuẩn phát triển.
-
Van khóa nước an toàn: Đảm bảo độ bền và hạn chế rò rỉ trong quá trình sử dụng.
-
Chiều cao tiêu chuẩn: Thiết kế phù hợp với vóc dáng người Việt, mang lại cảm giác thoải mái khi ngồi.
Ưu điểm bồn cầu đặt sàn TOTO MS857DE4 Nắp Rửa Cơ TCW1211A
-
Trải nghiệm vệ sinh tiện nghi hơn: Nhờ nắp rửa cơ, người dùng dễ dàng làm sạch mà không cần giấy vệ sinh, thân thiện với môi trường.
-
Tiết kiệm chi phí điện năng: Không sử dụng điện nên an toàn và kinh tế.
-
Độ bền vượt trội: Sản phẩm chính hãng TOTO, có tuổi thọ cao, bảo hành uy tín.
-
An toàn cho sức khỏe: Công nghệ chống bám bẩn hạn chế vi khuẩn, bảo vệ làn da nhạy cảm.
-
Tối ưu diện tích phòng tắm: Kiểu dáng gọn gàng, phù hợp nhiều phong cách nội thất.
-
Thương hiệu uy tín: TOTO là thương hiệu thiết bị vệ sinh Nhật Bản lâu đời, được đánh giá cao về chất lượng và dịch vụ hậu mãi.
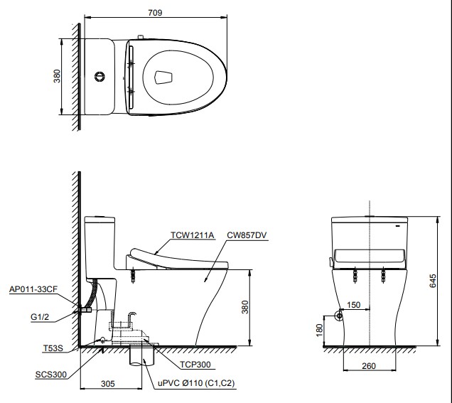
Bản vẽ kích thước bồn cầu thông minh TOTO MS857DE4 Nắp Rửa Cơ TCW1211A
Dưới đây là bản vẽ kỹ thuật của bệt 857 giúp bạn hình dung rõ hơn về kích thước và thông số lắp đặt:

Bản vẽ kích thước bồn cầu một khối TOTO MS857DE4 Nắp rửa cơ TCW1211A
Video review bàn cầu 1 khối TOTO MS857DE4 Nắp Rửa Cơ TCW1211A
Để giúp bạn có cái nhìn chân thực nhất về bàn cầu, dưới đây là video review chi tiết sản phẩm:
Hãy liên hệ ngay với Showroom Tâm Anh để được tư vấn những mẫu bồn cầu TOTO ưng ý, chất lượng và giá tốt nhất thị trường bạn nhé.
Liên hệ ngay để được hỗ trợ và tư vấn: 0967.136.177 - 0987.315.238